5 Bedroom
5 Bathroom
3209 sqft
2 Level
Fireplace
Central Air Conditioning
Forced Air
$1,749,900
Looking for a Home with WOW FACTOR? Well THIS IS IT! Fully renovated from top to bottom and inside & out! Nothing has been overlooked. 2567 sf (includes garage) plus an additional 1000+/- sf below grade of incredible living space adding up to 3+2 beds and 4.5 bath 3000+sf. The master bedroom boasts a spacious walk-in closet and a stunning ensuite. 2 additional bathrooms were added on the second floor. A gorgeous open concept kitchen with quartz counters and high-end appliances, overlooking an impressive family room with stunning fireplace, and custom built-ins. Basement was completely redone with two new offices which could work as added bedrooms. Home is located in the highly desirable Old Meadowvale Village. Steps to conservation area and walking trails, Credit River, and parks. Easy hwy access & close to shopping and the best of Schools. Don't Miss Out! A Must See!! No money was spared to create this dream home! (id:55009)
Property Details
|
MLS® Number
|
40658250 |
|
Property Type
|
Single Family |
|
Neigbourhood
|
Meadowvale Village |
|
Amenities Near By
|
Park, Playground, Shopping |
|
Features
|
Corner Site, Conservation/green Belt |
|
Parking Space Total
|
6 |
Building
|
Bathroom Total
|
5 |
|
Bedrooms Above Ground
|
3 |
|
Bedrooms Below Ground
|
2 |
|
Bedrooms Total
|
5 |
|
Appliances
|
Central Vacuum |
|
Architectural Style
|
2 Level |
|
Basement Development
|
Finished |
|
Basement Type
|
Full (finished) |
|
Constructed Date
|
2005 |
|
Construction Style Attachment
|
Detached |
|
Cooling Type
|
Central Air Conditioning |
|
Exterior Finish
|
Brick |
|
Fire Protection
|
Alarm System |
|
Fireplace Fuel
|
Electric |
|
Fireplace Present
|
Yes |
|
Fireplace Total
|
2 |
|
Fireplace Type
|
Other - See Remarks |
|
Foundation Type
|
Poured Concrete |
|
Half Bath Total
|
1 |
|
Heating Type
|
Forced Air |
|
Stories Total
|
2 |
|
Size Interior
|
3209 Sqft |
|
Type
|
House |
|
Utility Water
|
Municipal Water |
Parking
Land
|
Access Type
|
Road Access, Highway Access |
|
Acreage
|
No |
|
Land Amenities
|
Park, Playground, Shopping |
|
Sewer
|
Municipal Sewage System |
|
Size Depth
|
85 Ft |
|
Size Frontage
|
64 Ft |
|
Size Irregular
|
0.115 |
|
Size Total
|
0.115 Ac|under 1/2 Acre |
|
Size Total Text
|
0.115 Ac|under 1/2 Acre |
|
Zoning Description
|
Rgm1 |
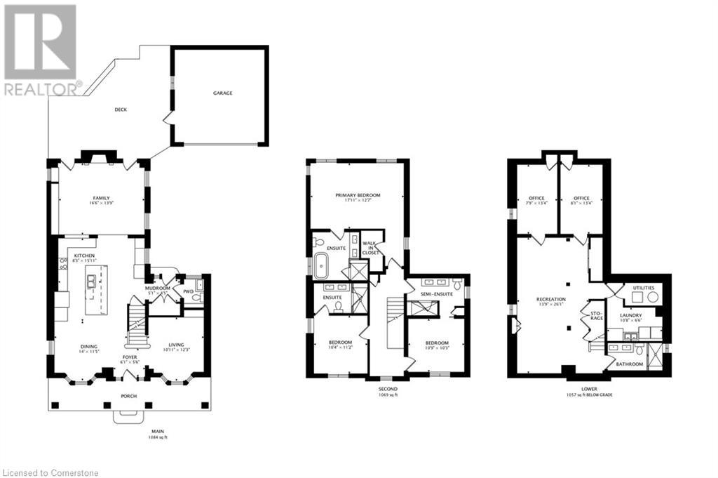
Rooms
| Level |
Type |
Length |
Width |
Dimensions |
|
Second Level |
4pc Bathroom |
|
|
Measurements not available |
|
Second Level |
4pc Bathroom |
|
|
Measurements not available |
|
Second Level |
5pc Bathroom |
|
|
Measurements not available |
|
Second Level |
Bedroom |
|
|
10'9'' x 10'3'' |
|
Second Level |
Bedroom |
|
|
10'4'' x 11'2'' |
|
Second Level |
Primary Bedroom |
|
|
17'11'' x 12'7'' |
|
Lower Level |
Bedroom |
|
|
7'9'' x 13'4'' |
|
Lower Level |
Bedroom |
|
|
8'1'' x 13'4'' |
|
Lower Level |
Recreation Room |
|
|
13'9'' x 26'1'' |
|
Lower Level |
Laundry Room |
|
|
10'8'' x 6'6'' |
|
Lower Level |
4pc Bathroom |
|
|
Measurements not available |
|
Main Level |
Family Room |
|
|
16'6'' x 13'9'' |
|
Main Level |
Kitchen |
|
|
8'3'' x 15'11'' |
|
Main Level |
Mud Room |
|
|
5'1'' x 4'5'' |
|
Main Level |
2pc Bathroom |
|
|
Measurements not available |
|
Main Level |
Dining Room |
|
|
14'0'' x 11'5'' |
|
Main Level |
Living Room |
|
|
10'11'' x 12'3'' |
|
Main Level |
Foyer |
|
|
6'1'' x 5'6'' |
https://www.realtor.ca/real-estate/27504726/7096-baskerville-run-mississauga