70 Colborne Street Brantford, Ontario N3T 2G5
$1,899,900
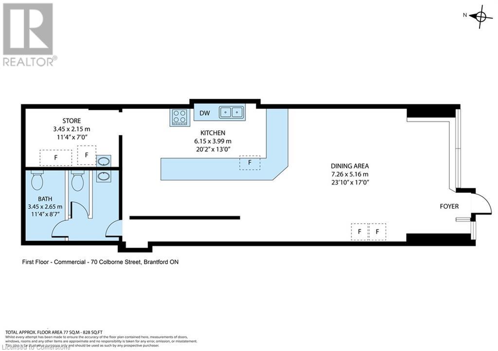
Location, Location, Location! Nestled in the heart of downtown Brantford, this fully occupied mixed-use property offers unbeatable convenience and high-demand rental potential. Situated directly across from Canada's largest YMCA, the popular casino, and Wilfrid Laurier University's Brantford campus, this property is the center of a vibrant and thriving student community. Key Highlights: 5 Residential Rental Units – Fully leased, catering to a growing student population of around 2,700 undergraduates and graduates. 4 Ground-Floor Commercial Units – Prime storefront space in a bustling downtown core, offering strong visibility and foot traffic. Total Above-Grade Gross Square Footage: 10,946 sq. ft. Below-Grade Space – Offers an additional 3,000 sq. ft. of rental potential, ideal for storage or retail expansion. Untapped Attic Space – Potential for further development into another residential unit or expanding the 5th unit for premium living space with breathtaking views of the casino and Grand River. With Laurier Brantford transforming the downtown core, this property enjoys year-round demand from students, professionals, and businesses. Plus, the opportunity to further develop the attic and below-grade spaces means additional revenue potential for savvy investors. (id:55009)
Property Details
| MLS® Number | 40661479 |
| Property Type | Office |
| Features | Southern Exposure |
Building
| Basement Type | Full |
| Stories Total | 4 |
| Size Exterior | 10946.0000 |
| Size Interior | 10946 Sqft |
| Utility Water | Municipal Water |
Land
| Access Type | Highway Access |
| Acreage | No |
| Sewer | Municipal Sewage System |
| Size Depth | 132 Ft |
| Size Frontage | 40 Ft |
| Size Total Text | Under 1/2 Acre |
| Zoning Description | C1 |
https://www.realtor.ca/real-estate/27529081/70-colborne-street-brantford
Interested?
Contact us for more information

































