LOADING

601 Norfolk Street S Simcoe, Ontario N3Y 4K1

3552 sqft
Acreage

$1,125,000

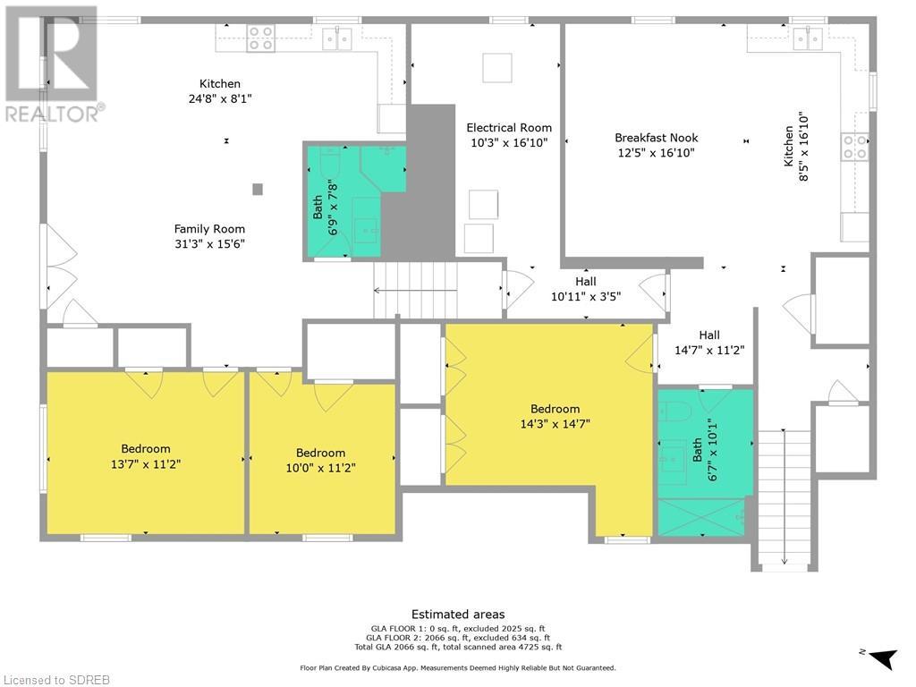
Attention Investors!! This property includes a large four level side- split home with over 3000 sq. ft finished living space. Offering 7 bedrooms, 5 bathrooms and 3 kitchens, attached 2 car garage, on a sizeable 1.5 acre lot. This property has great in-law capability with a separate entrance and driveway. The property is zoned CS(Service Commercial), allowing for many permitted uses like automobile gas station, automobile service and repair station, automobile washing establishment , automotive parts shop and convenience store. Great opportunity to live next door to the business you run. This is a great investment opportunity. Book a private showing today. (Cross Refer Listing ID: 40629845) (id:55009)

Property Details

MLS® Number 40633315
Property Type Office
Amenities Near By Hospital, Schools
Features Crushed Stone Driveway
Parking Space Total 12

Building

Basement Type Full
Construction Material Concrete Block, Concrete Walls
Exterior Finish Concrete
Stories Total 2
Size Exterior 3552.0000
Size Interior 3552 Sqft
Utility Water Well

Parking

Attached Garage

Land

Acreage Yes
Land Amenities Hospital, Schools
Sewer Septic System
Size Frontage 352 Ft
Size Irregular 1.5
Size Total 1.5 Ac|1/2 - 1.99 Acres
Size Total Text 1.5 Ac|1/2 - 1.99 Acres
Zoning Description Cs

https://www.realtor.ca/real-estate/27288426/601-norfolk-street-s-simcoe

Interested?

Contact us for more information


Generating Captcha

Your Favourites

 

No Favourites Found

 

Go to Top