3 Bedroom
2 Bathroom
1224 sqft
Bungalow
Forced Air
$545,000
Welcome to this beautifully updated bungalow with a rear suite, nestled in the heart of downtown St. Catharines. Renovated in 2020, this property seamlessly blends modern conveniences with classic charm. The front unit boasts two spacious bedrooms, a sleek bathroom, and an open-concept living area that flows into a gorgeous, modern kitchen—perfect for entertaining or quiet nights in. The back unit offers a one-bedroom layout with one bathroom and a partially finished basement, ideal for additional storage or a personalized touch. This property is great for rental potential but, can easily be used as a great single-family home. Whether you're looking for a solid investment or a versatile living space, this bungalow is must-see (id:55009)
Property Details
|
MLS® Number
|
XH4203627 |
|
Property Type
|
Single Family |
|
Equipment Type
|
Water Heater |
|
Features
|
Paved Driveway, No Driveway |
|
Parking Space Total
|
1 |
|
Rental Equipment Type
|
Water Heater |
Building
|
Bathroom Total
|
2 |
|
Bedrooms Above Ground
|
3 |
|
Bedrooms Total
|
3 |
|
Architectural Style
|
Bungalow |
|
Basement Development
|
Partially Finished |
|
Basement Type
|
Full (partially Finished) |
|
Construction Style Attachment
|
Detached |
|
Exterior Finish
|
Vinyl Siding |
|
Foundation Type
|
Block |
|
Heating Fuel
|
Natural Gas |
|
Heating Type
|
Forced Air |
|
Stories Total
|
1 |
|
Size Interior
|
1224 Sqft |
|
Type
|
House |
|
Utility Water
|
Municipal Water |
Land
|
Acreage
|
No |
|
Sewer
|
Municipal Sewage System |
|
Size Depth
|
95 Ft |
|
Size Frontage
|
28 Ft |
|
Size Total Text
|
Under 1/2 Acre |
|
Soil Type
|
Clay |
Rooms
| Level |
Type |
Length |
Width |
Dimensions |
|
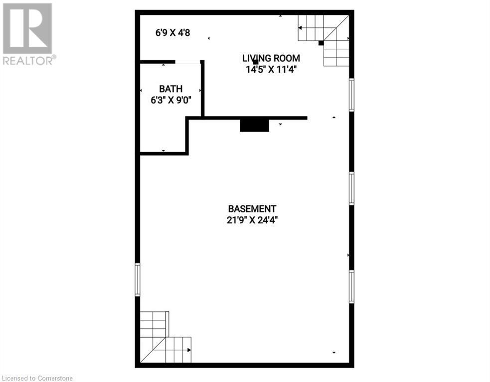
Lower Level |
3pc Bathroom |
|
|
9' x 6'3'' |
|
Lower Level |
Den |
|
|
6'9'' x 4'8'' |
|
Lower Level |
Living Room |
|
|
14'5'' x 11'4'' |
|
Lower Level |
Recreation Room |
|
|
21'9'' x 24'4'' |
|
Main Level |
Foyer |
|
|
10'10'' x 6'10'' |
|
Main Level |
Bedroom |
|
|
11'0'' x 9'7'' |
|
Main Level |
Kitchen |
|
|
13'8'' x 10'10'' |
|
Main Level |
Foyer |
|
|
13'6'' x 6' |
|
Main Level |
5pc Bathroom |
|
|
7'2'' x 6'6'' |
|
Main Level |
Bedroom |
|
|
11'0'' x 9'7'' |
|
Main Level |
Bedroom |
|
|
11'0'' x 9'9'' |
|
Main Level |
Kitchen |
|
|
12'2'' x 10'10'' |
|
Main Level |
Living Room |
|
|
11'0'' x 10'10'' |
https://www.realtor.ca/real-estate/27426959/47-lowell-avenue-st-catharines