5 Bedroom
4 Bathroom
1734 sqft
2 Level
Central Air Conditioning
Forced Air
$749,900
**Attention Investors and House Hackers!** Seize this rare opportunity to own one or two brand-new, legal duplexes for just $749,900 each! These semi-detached gems, currently under construction, will be move-in ready or tenant-ready by the end of 2024. Each property boasts a spacious 3-bedroom, 3-bathroom unit upstairs and a fully separate 2-bedroom basement unit, all with independent utilities. With custom finishes throughout and the peace of mind provided by a 5-year Tarion Warranty, these properties are designed for maximum comfort and investment potential. And to sweeten the deal, we're offering a free year of property management services to help you boost your cash flow from day one! Don't miss out on this incredible chance to grow your positive cash-flowing real estate portfolio—call today! Financial proforma available in the attachments. (id:55009)
Property Details
|
MLS® Number
|
40656200 |
|
Property Type
|
Single Family |
|
Amenities Near By
|
Public Transit |
|
Community Features
|
Community Centre |
|
Equipment Type
|
None |
|
Parking Space Total
|
2 |
|
Rental Equipment Type
|
None |
Building
|
Bathroom Total
|
4 |
|
Bedrooms Above Ground
|
3 |
|
Bedrooms Below Ground
|
2 |
|
Bedrooms Total
|
5 |
|
Appliances
|
Dishwasher, Refrigerator, Stove, Microwave Built-in |
|
Architectural Style
|
2 Level |
|
Basement Development
|
Unfinished |
|
Basement Type
|
Full (unfinished) |
|
Construction Style Attachment
|
Semi-detached |
|
Cooling Type
|
Central Air Conditioning |
|
Exterior Finish
|
Brick, Vinyl Siding |
|
Foundation Type
|
Poured Concrete |
|
Half Bath Total
|
1 |
|
Heating Fuel
|
Natural Gas |
|
Heating Type
|
Forced Air |
|
Stories Total
|
2 |
|
Size Interior
|
1734 Sqft |
|
Type
|
House |
|
Utility Water
|
Municipal Water |
Land
|
Acreage
|
No |
|
Land Amenities
|
Public Transit |
|
Sewer
|
Municipal Sewage System |
|
Size Depth
|
118 Ft |
|
Size Frontage
|
33 Ft |
|
Size Total Text
|
Under 1/2 Acre |
|
Zoning Description
|
R2 |
Rooms
| Level |
Type |
Length |
Width |
Dimensions |
|
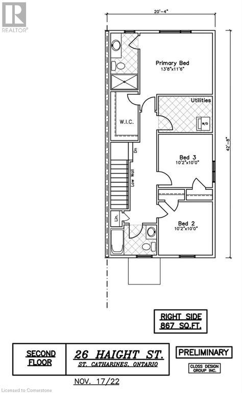
Second Level |
Other |
|
|
6'8'' x 8'0'' |
|
Second Level |
4pc Bathroom |
|
|
10'2'' x 7'0'' |
|
Second Level |
Bedroom |
|
|
10'2'' x 10'0'' |
|
Second Level |
Bedroom |
|
|
10'2'' x 10'0'' |
|
Second Level |
Utility Room |
|
|
10'2'' x 8'4'' |
|
Second Level |
3pc Bathroom |
|
|
6'8'' x 11'0'' |
|
Second Level |
Primary Bedroom |
|
|
13'8'' x 11'6'' |
|
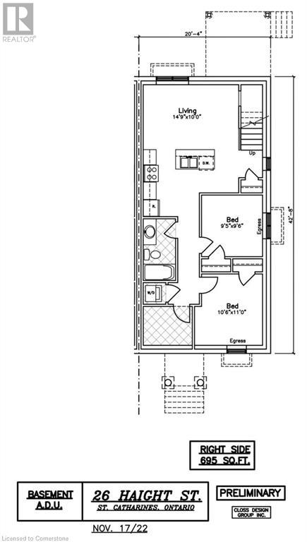
Basement |
4pc Bathroom |
|
|
Measurements not available |
|
Basement |
Bedroom |
|
|
10'6'' x 11'0'' |
|
Basement |
Bedroom |
|
|
9'5'' x 9'6'' |
|
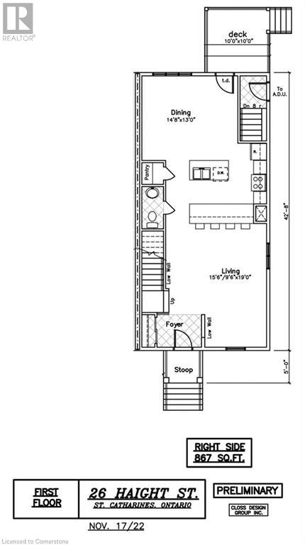
Main Level |
2pc Bathroom |
|
|
4'6'' x 6'0'' |
|
Main Level |
Eat In Kitchen |
|
|
15'6'' x 10'0'' |
|
Main Level |
Dining Room |
|
|
14'8'' x 13'0'' |
|
Main Level |
Living Room |
|
|
15'6'' x 19'0'' |
https://www.realtor.ca/real-estate/27488394/26b-haight-street-st-catharines