4 Bedroom
1 Bathroom
2270 sqft
Forced Air
$1,024,000
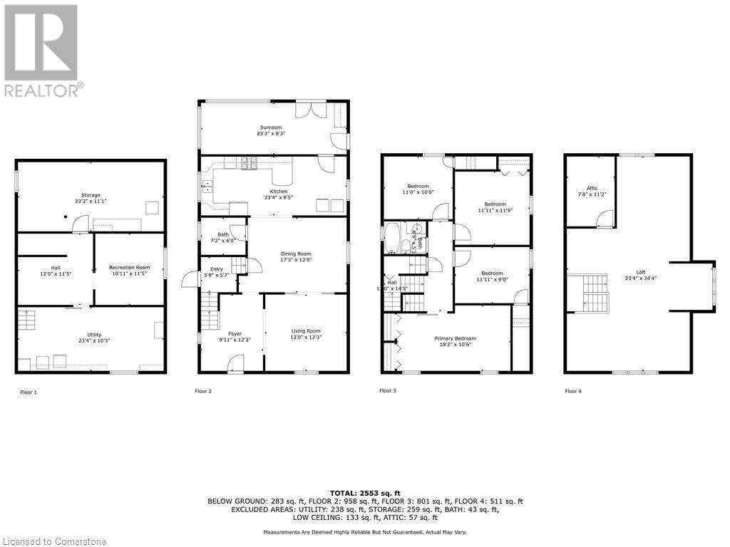
Tired of commuting have you ever wanted to run your business and live where you work to add more time and quality to your life? Nestled on a half-acre lot, this stunning 2.5-storey Victorian-era home offers 2,270 sq. ft. of elegant living space, with an additional 283 sq. ft. in the basement. While currently used as a full residential property, it features an S2 commercial zoning component, offering the flexibility for a live/work setup or full conversion to a business. At this time the home boasts 4 spacious bedrooms and a large remodelled attic with sun tunnels that can be transformed into a luxurious 5th bedroom master suite. A beautiful sunroom overlooks the backyard, adding to its charm. Modern amenities and updates include a newer kitchen with granite counters, a large separate dining room, a metal roof, fully redone attic and insulation, 200-amp electrical upgrades, Lutron lighting throughout, septic system, and some updated windows—all while preserving its historic character. The existing full bathroom is complemented by two additional spaces already framed and ready for bathroom additions, allowing for further customization. This property uniquely blends classic architecture with contemporary conveniences, offering endless possibilities in a highly desirable location. For a detailed list of updates and zoning information, please contact a realtor. (id:55009)
Property Details
|
MLS® Number
|
XH4203005 |
|
Property Type
|
Single Family |
|
Equipment Type
|
None |
|
Features
|
Crushed Stone Driveway, Country Residential, Sump Pump |
|
Parking Space Total
|
9 |
|
Rental Equipment Type
|
None |
Building
|
Bathroom Total
|
1 |
|
Bedrooms Above Ground
|
4 |
|
Bedrooms Total
|
4 |
|
Basement Development
|
Unfinished |
|
Basement Type
|
Full (unfinished) |
|
Construction Style Attachment
|
Detached |
|
Exterior Finish
|
Brick |
|
Foundation Type
|
Poured Concrete |
|
Heating Fuel
|
Natural Gas |
|
Heating Type
|
Forced Air |
|
Stories Total
|
3 |
|
Size Interior
|
2270 Sqft |
|
Type
|
House |
|
Utility Water
|
Cistern |
Parking
Land
|
Acreage
|
No |
|
Sewer
|
Septic System |
|
Size Depth
|
156 Ft |
|
Size Frontage
|
146 Ft |
|
Size Total Text
|
1/2 - 1.99 Acres |
Rooms
| Level |
Type |
Length |
Width |
Dimensions |
|
Second Level |
4pc Bathroom |
|
|
6'9'' x 5'3'' |
|
Second Level |
Primary Bedroom |
|
|
18'2'' x 10'6'' |
|
Second Level |
Bedroom |
|
|
11'11'' x 9'0'' |
|
Second Level |
Bedroom |
|
|
11'11'' x 11'9'' |
|
Second Level |
Bedroom |
|
|
11'0'' x 10'0'' |
|
Main Level |
Foyer |
|
|
9'11'' x 12'3'' |
|
Main Level |
Storage |
|
|
7'2'' x 6'0'' |
|
Main Level |
Living Room |
|
|
13'0'' x 12'3'' |
|
Main Level |
Dining Room |
|
|
17'3'' x 12'0'' |
|
Main Level |
Kitchen |
|
|
23'4'' x 9'5'' |
|
Main Level |
Sunroom |
|
|
23'3'' x 8'3'' |
https://www.realtor.ca/real-estate/27427322/2038-governors-road-ancaster