LOADING

19 Fawell Avenue St. Catharines, Ontario L2V 2V5

3137 sqft
2 Level Radiant Heat

$865,000

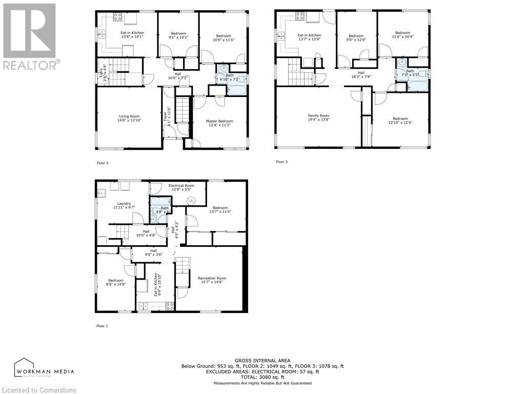
Excellent Investment or Live-In Income Opportunity! Purpose-Built Triplex in the sought after Martindale area of St. Catharines. Extensive updates to modern building standards in 2015 include: high efficiency windows and doors, high efficiency central boiler heating system, full roof replacement, all new electrical and all new plumbing. All kitchens and baths updated in 2015. Each unit is spacious and has full secondary fire exit. Property includes on-site laundry. Outside is plenty of parking for each unit, a storage workshop, storage shed for each unit and low-maintenance tidy perennial gardens. Parking lot is freshly sealed, common areas recently painted, and exterior resurfaced with an attractive and durable 30-year high pigment coating. This property is turnkey profitability at it’s best! Unit Details: Upper features private entrance, 3 bedrooms, large eat-in kitchen, huge living room, 4-piece bath, ample closet space, and a huge private wood deck. Main freshly renovated in 2024! Features private entrance, 3 bedrooms, eat-in kitchen, large living room, 4-piece bath, ample closet space, and front porch. Basement features semi-private entrance, 2 bedrooms, eat-in kitchen, large living room, 4-piece bath, large windows and tons of closet and storage space. Vacant possession available in two units. Area Influences: Great Shopping, Top-Tier Schools, Walking Distance to Parks, Trails, Bus Route, stores and Much More! (id:55009)

Business

Business Type Residential

Property Details

MLS® Number XH4198630
Property Type Multi-family
Amenities Near By Hospital, Park, Place Of Worship, Public Transit, Schools
Community Features Quiet Area, Community Centre
Equipment Type Water Heater
Features Level Lot, Paved Driveway, Level, Carpet Free, No Driveway
Parking Space Total 4
Rental Equipment Type Water Heater
Structure Shed

Building

Architectural Style 2 Level
Basement Development Finished
Basement Type Full (finished)
Construction Style Attachment Detached
Exterior Finish Brick, Stucco
Fire Protection Smoke Detectors
Foundation Type Poured Concrete
Heating Fuel Natural Gas
Heating Type Radiant Heat
Stories Total 2
Size Interior 3137 Sqft
Type Triplex
Utility Water Municipal Water

Land

Acreage No
Land Amenities Hospital, Park, Place Of Worship, Public Transit, Schools
Sewer Municipal Sewage System
Size Depth 100 Ft
Size Frontage 50 Ft
Size Total Text Under 1/2 Acre
Soil Type Clay

https://www.realtor.ca/real-estate/27428945/19-fawell-avenue-st-catharines

Interested?

Contact us for more information


Generating Captcha

Your Favourites

 

No Favourites Found

 

Go to Top