4 Bedroom
6 Bathroom
2904 sqft
2 Level
Fireplace
Central Air Conditioning
Forced Air
Lawn Sprinkler
$1,998,000
Prepare to be wowed by this gorgeous home! Conveniently located just a short walk to the village, 18 St. Ann’s Court is nestled on a private, mature, pie-shaped property. Completely transformed from top to bottom, with approximately 4000sqft of beautifully appointed living space. This is an excellent home for a large family, with its 4 bedrooms all with ensuite bathrooms, open concept main level with oversized chef’s kitchen, main floor living and family rooms, den, two laundry rooms and a walk-up basement with two separate entrances. A stunning marble feature wall extends from the basement all the way up to the second floor, complimenting the open oak staircase with wrought iron spindles. There are two gas fireplaces and two decorative electric, engineered hardwood flooring, and custom millwork throughout the home. The gourmet custom kitchen offers plenty of beautiful cabinetry, a centre island perfect for entertaining, Thermador and Electrolux Icon appliances, and additional counter space and built ins in the dining area. Five sets of French doors offer access from the kitchen and family room to the huge wraparound composite back deck. The elegant master retreat was beautifully designed with an electric fireplace feature wall, huge dressing room with custom built-in closet organization, a 5 pc ensuite, and french garden doors leading to the private balcony overlooking the back yard. There are many possibilities in the fully finished basement, with its L-shaped rec room offering a wet bar and plenty of space for a play area or in-law setup. There is a 3pc bathroom, second laundry room, storage, and walkup entrances to both the garage and to the back yard. When you step outside you’ll feel like you’re at the cottage, with covered patio lit with pot lights and wall sconces, offering multiple seating and dining areas, fire pits, and hot tub and irrigation system. This is a home that must be seen. (id:55009)
Property Details
|
MLS® Number
|
40650349 |
|
Property Type
|
Single Family |
|
Neigbourhood
|
Springvale |
|
Amenities Near By
|
Park, Place Of Worship, Playground, Public Transit, Schools, Shopping |
|
Community Features
|
Community Centre, School Bus |
|
Equipment Type
|
Water Heater |
|
Features
|
Wet Bar, Paved Driveway, Sump Pump, Automatic Garage Door Opener |
|
Parking Space Total
|
8 |
|
Rental Equipment Type
|
Water Heater |
|
Structure
|
Porch |
Building
|
Bathroom Total
|
6 |
|
Bedrooms Above Ground
|
4 |
|
Bedrooms Total
|
4 |
|
Appliances
|
Central Vacuum, Dishwasher, Dryer, Oven - Built-in, Refrigerator, Wet Bar, Washer, Microwave Built-in, Hood Fan, Window Coverings, Wine Fridge, Garage Door Opener, Hot Tub |
|
Architectural Style
|
2 Level |
|
Basement Development
|
Finished |
|
Basement Type
|
Full (finished) |
|
Constructed Date
|
1959 |
|
Construction Material
|
Wood Frame |
|
Construction Style Attachment
|
Detached |
|
Cooling Type
|
Central Air Conditioning |
|
Exterior Finish
|
Brick, Wood |
|
Fireplace Fuel
|
Electric |
|
Fireplace Present
|
Yes |
|
Fireplace Total
|
2 |
|
Fireplace Type
|
Other - See Remarks |
|
Foundation Type
|
Block |
|
Half Bath Total
|
1 |
|
Heating Fuel
|
Natural Gas |
|
Heating Type
|
Forced Air |
|
Stories Total
|
2 |
|
Size Interior
|
2904 Sqft |
|
Type
|
House |
|
Utility Water
|
Municipal Water |
Parking
Land
|
Access Type
|
Road Access, Highway Nearby |
|
Acreage
|
No |
|
Land Amenities
|
Park, Place Of Worship, Playground, Public Transit, Schools, Shopping |
|
Landscape Features
|
Lawn Sprinkler |
|
Sewer
|
Municipal Sewage System |
|
Size Depth
|
138 Ft |
|
Size Frontage
|
50 Ft |
|
Size Total Text
|
Under 1/2 Acre |
|
Zoning Description
|
Er |
Rooms
| Level |
Type |
Length |
Width |
Dimensions |
|
Second Level |
3pc Bathroom |
|
|
Measurements not available |
|
Second Level |
Bedroom |
|
|
11'8'' x 9'7'' |
|
Second Level |
3pc Bathroom |
|
|
Measurements not available |
|
Second Level |
Bedroom |
|
|
13'8'' x 11'6'' |
|
Second Level |
4pc Bathroom |
|
|
Measurements not available |
|
Second Level |
Bedroom |
|
|
11'8'' x 10'0'' |
|
Second Level |
Full Bathroom |
|
|
Measurements not available |
|
Second Level |
Primary Bedroom |
|
|
20'1'' x 13'10'' |
|
Basement |
Storage |
|
|
Measurements not available |
|
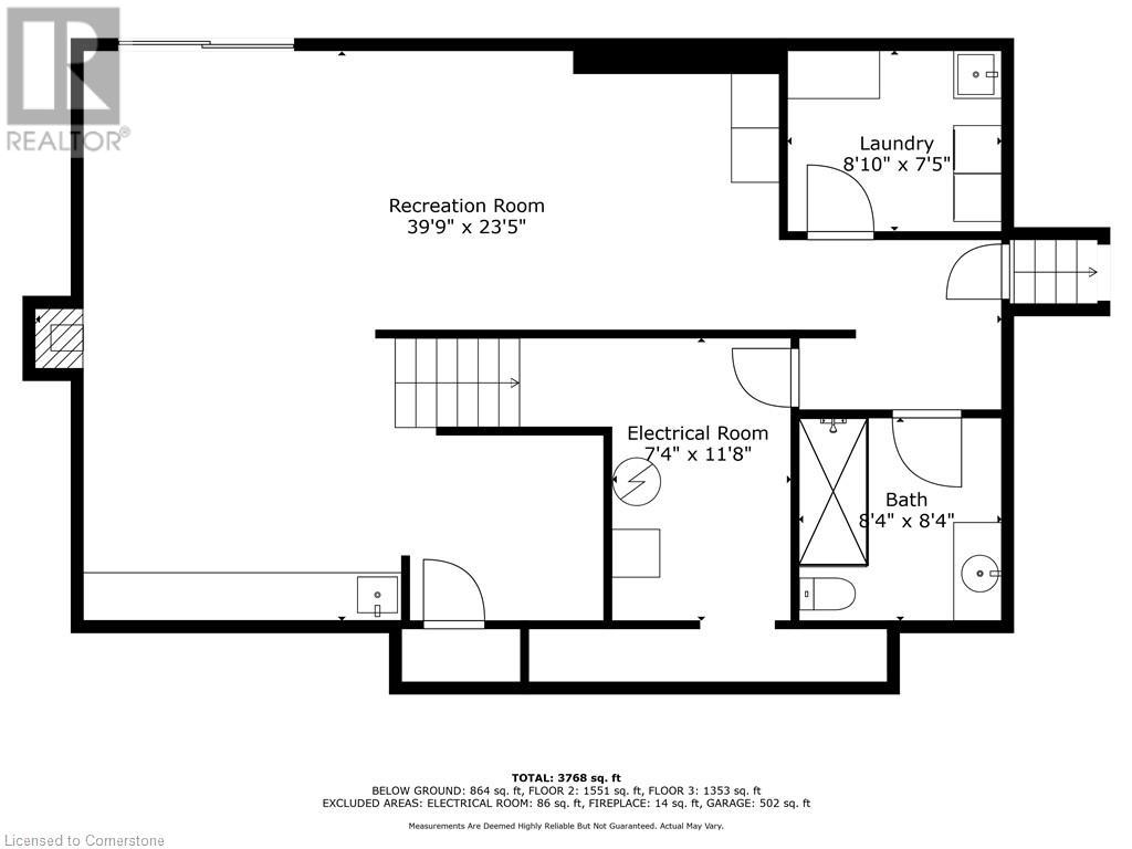
Basement |
Utility Room |
|
|
11'8'' x 7'4'' |
|
Basement |
Laundry Room |
|
|
8'10'' x 7'5'' |
|
Basement |
3pc Bathroom |
|
|
Measurements not available |
|
Basement |
Recreation Room |
|
|
39'9'' x 23'5'' |
|
Main Level |
Dinette |
|
|
20'5'' x 13'11'' |
|
Main Level |
Laundry Room |
|
|
6'8'' x 5'10'' |
|
Main Level |
2pc Bathroom |
|
|
Measurements not available |
|
Main Level |
Family Room |
|
|
20'4'' x 22'0'' |
|
Main Level |
Kitchen |
|
|
20'1'' x 10'4'' |
|
Main Level |
Den |
|
|
11'8'' x 10'0'' |
|
Main Level |
Living Room |
|
|
23'5'' x 13'1'' |
|
Main Level |
Foyer |
|
|
14'3'' x 11'8'' |
https://www.realtor.ca/real-estate/27464289/18-st-anns-court-ancaster